
Acorn Acres
Chapel Hill, North Carolina
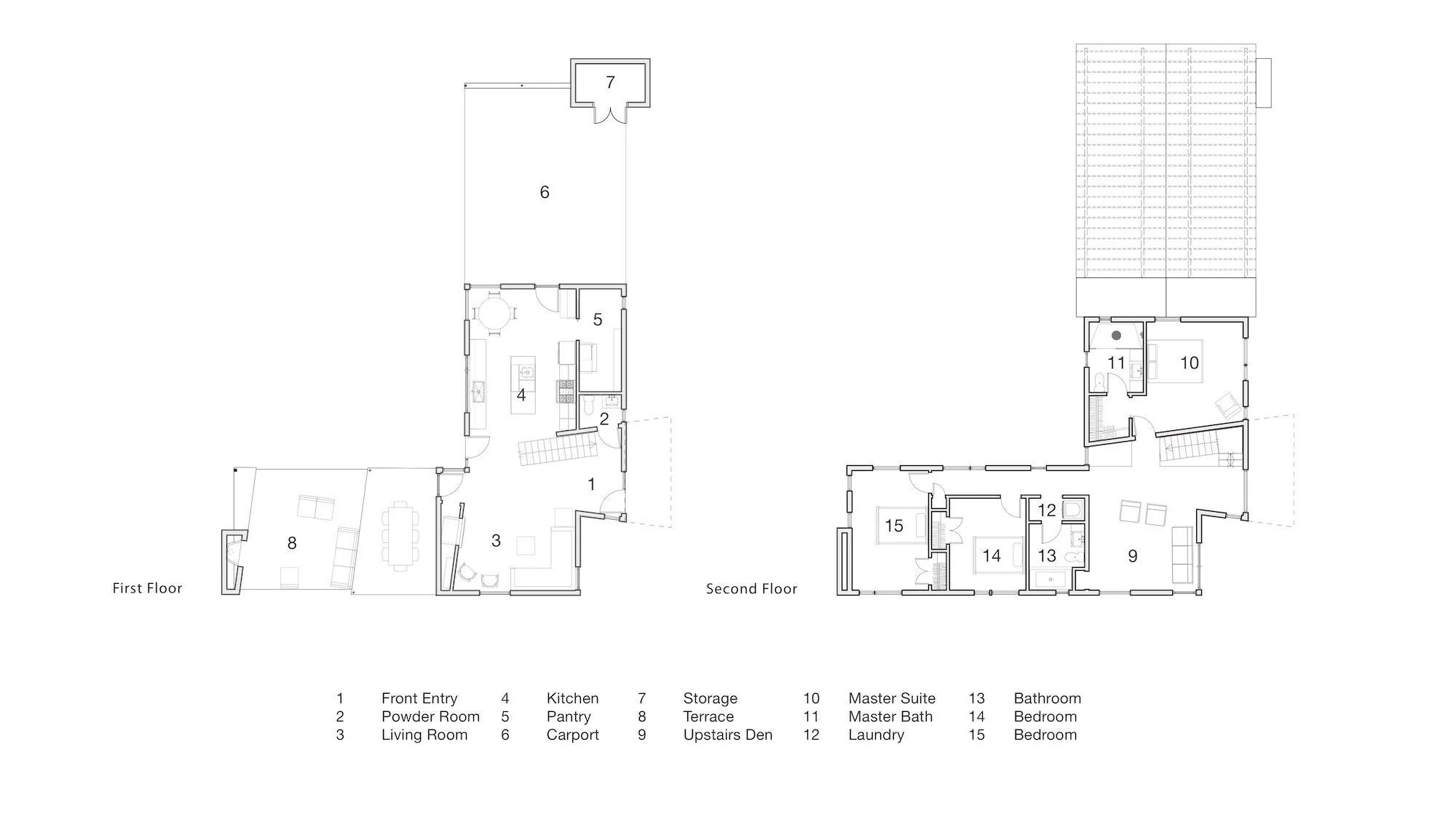
It's a dream come true as an architect to design your own home. We worked hard to be sensitive to the environment and marry our house to the land, while also creating a home that plays with light and provides us spaces to fulfill our needs as a family.
Architect: Heather R.B. Washburn, AIA
Contractor: Ballard Construction Inc.
Photographer: Calico Studio
Videographer: David Pratt